- HOME>
- プラン例
厳しい実験により実証された確かな耐震性能に加え、⾃由度の⾼い設計ができるGRAND NESTA。
お客様の理想やご要望、ライフスタイル、ご予算に合わせて、様々なデザインや空間を
実現することができ、そのいくつかをご紹介いたします。
厳しい実験により実証された確かな耐震性能に加え、⾃由度の⾼い設計ができるGRAND NESTA。
お客様の理想やご要望、ライフスタイル、ご予算に合わせて、様々なデザインや空間を
実現することができ、そのいくつかをご紹介いたします。




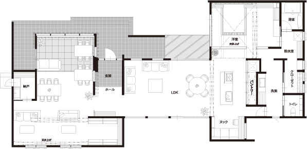
「モダンと伝統が融合する暮らし」の家
延床面積/196.33㎡(59.38坪)
[岡山県倉敷市]
現代のモダンな生活スタイルと、木や石といった日本の伝統的な要素を融合させました。外観デザインはシンプルで洗練されたラインを持ちつつ、木とガラスを多用するごとで自然との一体感を強調しています。広々としたLDKには、自然光をたっぷりと取り込む窓と、読書やコーヒータイムを楽しむヌックを取り入れ、家族全員がリラックスできる明るく開放的な空間としました。また、全体に壁面に右調のアクセントとCLTによるあらわし壁を取り入れることで、自然素材の温かみを演出しつつも、モダンなデザインを融合させています。日常生活の中で自然と調和しながら、洗練されたライフスタイルを実現する住まいです。






自然と調和するリラックス空間の家
延床面積/145.33㎡ (43.96坪)
1 F床面積/91.09㎡ 2F床面積/54.24㎡
[岡山県岡山市]
1階には開放感のあるLDKと、映画鑑賞や趣味の時間を楽しむためのシアタールームを配置し、家族や友人と過ごす時間をより豊かにします。また、1階の大きな窓からは豊かな自然光が差し込み、室内全体が明るく開放的な雰囲気に包まれます。2階には広々としたキッチンとホールがあり、フラットルーフのテラスから外の景色を楽しむことができます。このテラスは、バーベキューやアウトドアリビングを楽しむことができ、自然と一体化した生活を実現します。またバルコニーからも自然の美しさを楽しむことができ、毎日の生活に癒しをもたらします。